1. トップページ
  2. 市川市南大野1丁目 新築一戸建 5390万円

市川市南大野1丁目 新築一戸建 5390万円

価格
5,390万円
物件種別
新築一戸建て
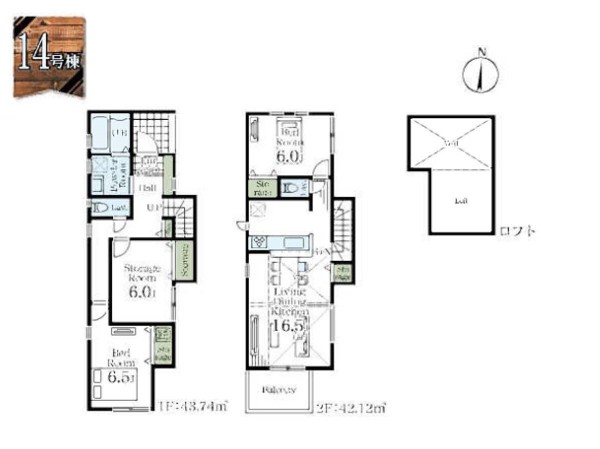
間取り
4LDK
所在地
市川市 南大野1丁目
交通
  • JR武蔵野線「市川大野」駅 徒歩 24 分
  • JR武蔵野線「市川大野」駅 バス停「市川東高校入口」まで 徒歩 2 分 バス利用 9分
土地面積
155.60㎡
建物面積
98.12㎡
  • 前回情報更新日 2026.04.03
  • 次回情報更新予定日 2026.04.17
資料請求 現地見学 電話でお問い合わせ
0120-895-750
外観:完成予想図です
外観:完成予想図です
間取り
間取り
周辺環境:セブン-イレブン 市川大野店(小腹が空いた深夜も、急な支払いもお任せ。セブンイレブンが近くにあると、なぜか毎日が安心です。)
周辺環境:セブン-イレブン 市川大野店(小腹が空いた深夜も、急な支払いもお任せ。セブンイレブンが近くにあると、なぜか毎日が安心です。)
周辺環境:市川市そらまめ保育園市川大野(信頼関係を第一に考え、温かい雰囲気で成長を包み込む園)
周辺環境:市川市そらまめ保育園市川大野(信頼関係を第一に考え、温かい雰囲気で成長を包み込む園)
周辺環境:市川南大野郵便局(荷物の発送や受け取り、手続きもサッと完了。郵便局が近くにあると、日常の用事がぐっとラクになります。)
周辺環境:市川南大野郵便局(荷物の発送や受け取り、手続きもサッと完了。郵便局が近くにあると、日常の用事がぐっとラクになります。)
周辺環境:ビッグ・エー 市川南大野店(食材も日用品も、サッと買えてお財布にも優しい。ビッグエーが近くにあると、「あ、足りない!」も慌てず笑顔で解決です。)
周辺環境:ビッグ・エー 市川南大野店(食材も日用品も、サッと買えてお財布にも優しい。ビッグエーが近くにあると、「あ、足りない!」も慌てず笑顔で解決です。)
周辺環境:大野小学校(誰かのために何かをすることを、素直に喜べるようになる学校)
周辺環境:大野小学校(誰かのために何かをすることを、素直に喜べるようになる学校)

この物件のココがオススメ!

「市川大野」駅徒歩圏内 カースペース3台可 全居室豊富な収納スペース有り 広々した南東向きバルコニー

こだわりポイント

  • 耐震に配慮された建物
  • 断熱に配慮された建物
  • 省エネに配慮された建物
  • 長期優良住宅
  • 食器洗い洗浄乾燥機
  • 浴室換気乾燥暖房機
  • 運転ラクラク生活
  • 外食を楽しめる生活
  • 駅まで平坦ラクラク通勤
  • 子供の多い街に住む
  • LDKは1階に
  • 2階建て住宅限定
  • シューズインクローク
  • LDK15帖以上
  • 広々バルコニー
  • 対面キッチン
  • 浴室1坪以上
  • 小学校10分以内
  • 大規模公園10分以内
  • スーパー10分以内
  • コンビニ10分以内
  • 総合病院10分以内
  • 保育園10分以内
  • 幼稚園10分以内
  • 公園10分以内
  • 都市ガス
  • フラット35利用可
  • カースペース3台以上
  • 公園隣接
  • 隣家との間隔たっぷり
  • 角地限定
  • 道路広々(5m以上)
  • 日当たり良好
  • 南道路限定
  • 低層住居専用地域

お気軽にどうぞ!

資料請求 現地見学 電話でお問い合わせ
0120-895-750

地図

申し訳ありません
こちらは会員限定機能です

会員登録で利用できる6つの便利機能

詳しく見る

間取り

お気軽にどうぞ!

資料請求 現地見学 電話でお問い合わせ
0120-895-750

ローンシミュレーション

頭金0万円・金利0.495%の場合

ボーナス時(年2回)お支払額

0

この物件の月々のお支払額

150,976

年収に対する返済比率

60

  • ※会員登録し、詳細情報を記入されますと、全ての物件で自動的に金額が表示され、大変便利です。
  • ※まだ会員登録をされていない方は、下記チェック欄をご記入ください。
  • ※上記計算は物件価格5,390万円+諸経費 8%込みの金額による結果となります。
  • ※返済金額はあくまでも目安です。

お客様の条件からシミュレーションするには?

会員登録
マイページから登録

ローンシミュレーションを入力

金利

直接入力する

ボーナス払い(年2回)

返済年数

頭金

直接入力する

 万円(半角数字)

年収

 万円(半角数字)

周辺環境

約100m

コンビニ

周辺環境:セブン-イレブン 市川大野店(小腹が空いた深夜も、急な支払いもお任せ。セブンイレブンが近くにあると、なぜか毎日が安心です。)

コンビニ

約100m

約400m

幼稚園・保育園

周辺環境:市川市そらまめ保育園市川大野(信頼関係を第一に考え、温かい雰囲気で成長を包み込む園)

幼稚園・保育園

約400m

約500m

郵便局

周辺環境:市川南大野郵便局(荷物の発送や受け取り、手続きもサッと完了。郵便局が近くにあると、日常の用事がぐっとラクになります。)

郵便局

約500m

約800m

スーパー

周辺環境:ビッグ・エー 市川南大野店(食材も日用品も、サッと買えてお財布にも優しい。ビッグエーが近くにあると、「あ、足りない!」も慌てず笑顔で解決です。)

スーパー

約800m

約290m

小学校

周辺環境:大野小学校(誰かのために何かをすることを、素直に喜べるようになる学校)

小学校

約290m

物件概要

価格 5,390万円
物件種別 新築一戸建て
間取り 4LDK
所在地 市川市 南大野1丁目
交通
  • JR武蔵野線「市川大野」駅 徒歩 24 分
  • JR武蔵野線「市川大野」駅 バス停「市川東高校入口」まで 徒歩 2 分 バス利用 9分
土地面積 155.60㎡
建物面積 98.12㎡
学区 市川市立大野小学校、市川市立下貝塚中学校
用途地域 第一種低層住居専用
建ぺい率 50%
容積率 100%
地目 宅地
駐車場 有り カースペース
接道 北東6m、南東6m
権利 所有権
私道面積 無し
セットバック 無し
建物構造 木造
建物階数 2階
築年月 2026年04月
入居日 2026年05月
都市計画 市街化区域
取引態様 仲介
物件番号 F00245
設備 公営水道、公共下水、設計住宅性能評価付、省エネルギー対策、耐震構造、シックハウス対策、駐車場2台以上、区画整理地内、角地、都市近郊、地盤調査済、南側道路面す、前道6m以上、市街地が近い、隣家との間隔が大きい、周辺交通量少なめ、スーパーが近い(10分以内)、駅まで平坦、総合病院徒歩10分以内、小学校徒歩10分以内、中学校徒歩10分以内、保育施設・幼稚園5分以内、公園5分以内、コンビニ5分以内、システムキッチン、ガス3口、食器洗い機付き、浄水器、I型キッチン、ユニットバス、追い焚き、浴室乾燥機、ウォシュレット、トイレ2ヶ所、浴室1坪以上、浴室に窓、暖房便座、浴室暖房、バルコニー、バルコニー2面、2階建、LDK15畳以上、採光2面、南面3室、全室2面採光、室内洗濯機置き場、クローゼット、収納、床下収納、下駄箱、全居室収納、シャンプドレッサー付き、フラット35Sに対応、年内入居可、モニタ付きインターフォン、複層ガラス、火災警報器(報知機)、通風良好、陽当り良好、24時間換気システム、建物10年保証
建築確認番号 第HPA-25-14940-1号
特記事項 不整形地:有/景観法:有/宅地造成工事規制区域:有/日影制限:有/高さ限度:有/建築基準法第22条による区域 駐車は車種により3台可。 /
備考 「市川大野」駅徒歩圏内 カースペース3台可 全居室豊富な収納スペース有り 広々した南東向きバルコニー

お気軽にどうぞ!

資料請求 現地見学 電話でお問い合わせ
0120-895-750

このエリアでお探しの方へ

船橋市習志野台2丁目 新築一戸建 5090万円 2号棟

京成松戸線「北習志野」駅 徒歩 12 分

東葉高速線「船橋日大前」駅 徒歩 17 分

船橋市 習志野台2丁目

5,090万円

4LDK

市川市宮久保1丁目 新築一戸建 5090万円

総武線「本八幡」駅 バス停「昭和学院」まで 徒歩 17 分 バス利用 2分

京成本線「菅野」駅 徒歩 21 分

市川市 宮久保1丁目

5,090万円

3LDK

市川市中国分3丁目2号棟 新築一戸建 5180万円

北総・公団線「矢切」駅 徒歩 22 分

京成本線「国府台」駅 バス停「中国分坂上」まで 徒歩 6 分 バス利用 8分

市川市 中国分3丁目

5,180万円

5LDK

船橋市藤原6丁目 新築一戸建 5180万円

東武アーバンパークライン「馬込沢」駅 徒歩 16 分

JR武蔵野線「船橋法典」駅 バス停「藤原6丁目」まで 徒歩 13 分 バス利用 12分

船橋市 藤原6丁目

5,180万円

4LDK

船橋市海神6丁目 新築一戸建 5180万円

京成本線「海神」駅 徒歩 5 分

総武線「西船橋」駅 徒歩 16 分

船橋市 海神6丁目

5,180万円

4LDK

市川市北国分2丁目 新築一戸建 5180万円 B棟

北総・公団線「北国分」駅 徒歩 12 分

常磐線「松戸」駅 バス停「上矢切」まで 徒歩 12 分 バス利用 9分

市川市 北国分2丁目

5,180万円

4LDK

市川市北国分2丁目 新築一戸建 5180万円 A棟

北総・公団線「北国分」駅 徒歩 12 分

常磐線「松戸」駅 バス停「上矢切」まで 徒歩 12 分 バス利用 9分

市川市 北国分2丁目

5,180万円

4LDK

市川市真間5丁目 新築一戸建 5180万円 14号棟

京成本線「市川真間」駅 徒歩 14 分

総武本線「市川」駅 徒歩 19 分

市川市 真間5丁目

5,180万円

2SLDK

船橋市海神5丁目 新築一戸建 5190万円

京成本線「海神」駅 徒歩 1 分

総武線「船橋」駅 徒歩 19 分

船橋市 海神5丁目

5,190万円

4LDK

千葉市稲毛区轟町1丁目 新築一戸建 5190万円

総武線「西千葉」駅 徒歩 8 分

京成千葉線「西登戸」駅 徒歩 17 分

千葉市稲毛区 轟町1丁目

5,190万円

2LDK+2S

船橋市前原西6丁目 新築一戸建 5199万円 6号棟

JR中央・総武線「津田沼」駅 徒歩 18 分

京成松戸線「前原」駅 徒歩 9 分

船橋市 前原西6丁目

5,199万円

3LDK

船橋市海神3丁目 新築一戸建 1号棟 5298万円

JR中央・総武線「船橋」駅 徒歩 14 分

東葉高速線「東海神」駅 徒歩 8 分

船橋市 海神3丁目

5,298万円

4LDK

お気軽にどうぞ!

資料請求 現地見学 電話でお問い合わせ
0120-895-750
来店予約