1. トップページ
  2. 習志野市香澄5丁目 新築一戸建 5299万円 1号棟

習志野市香澄5丁目 新築一戸建 5299万円 1号棟

価格
5,299万円
物件種別
新築一戸建て
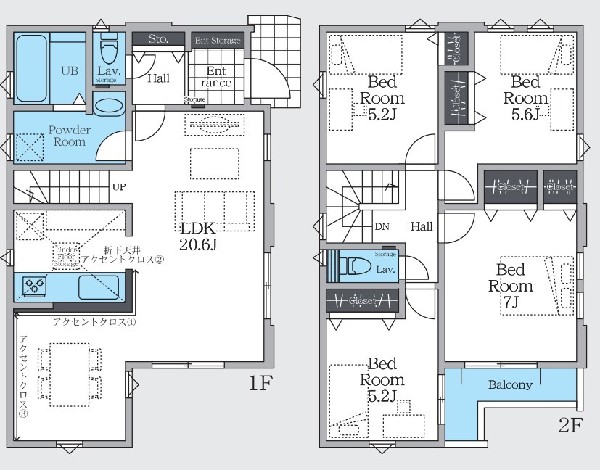
間取り
4LDK
所在地
習志野市 香澄5丁目
交通
  • JR京葉線「新習志野」駅 徒歩 17 分
  • 総武線「幕張本郷」駅 バス停「香澄小学校」まで 徒歩 9 分 バス利用 13分
土地面積
114.79㎡
建物面積
103.51㎡
  • 前回情報更新日 2026.04.03
  • 次回情報更新予定日 2026.04.17
資料請求 現地見学 電話でお問い合わせ
0120-895-750
外観
外観
間取り
間取り
区画図
区画図
(本画像はCGで作成しており、実際に現地に家具はおかれておりません。また価格に家具は含まれておりません)
(本画像はCGで作成しており、実際に現地に家具はおかれておりません。また価格に家具は含まれておりません)
(本画像はCGで作成しており、実際に現地に家具はおかれておりません。また価格に家具は含まれておりません)
(本画像はCGで作成しており、実際に現地に家具はおかれておりません。また価格に家具は含まれておりません)
(本画像はCGで作成しており、実際に現地に家具はおかれておりません。また価格に家具は含まれておりません)
(本画像はCGで作成しており、実際に現地に家具はおかれておりません。また価格に家具は含まれておりません)
外観
外観
外観
外観
玄関
玄関
キッチン
キッチン
リビング
リビング
リビング
リビング
周辺環境:習志野市立香澄小学校
周辺環境:習志野市立香澄小学校
周辺環境:習志野市立第七中学校
周辺環境:習志野市立第七中学校
周辺環境:習志野市立新習志野こども園
周辺環境:習志野市立新習志野こども園
周辺環境:かすみ保育園 (良いこと悪いことの区別を教え、規範意識の基礎を育む園)
周辺環境:かすみ保育園 (良いこと悪いことの区別を教え、規範意識の基礎を育む園)
周辺環境:医療法人社団葵会東京ベイ先端医療クリニック
周辺環境:医療法人社団葵会東京ベイ先端医療クリニック
周辺環境:習志野秋津郵便局
周辺環境:習志野秋津郵便局
周辺環境:香澄近隣公園(香澄ふれあい公園)_(習志野市香澄にある、広大な芝生と水遊び場が人気の公園。四季折々の自然やBBQも楽しめる憩いのスポット。)
周辺環境:香澄近隣公園(香澄ふれあい公園)_(習志野市香澄にある、広大な芝生と水遊び場が人気の公園。四季折々の自然やBBQも楽しめる憩いのスポット。)
周辺環境:ワイズディスカ香澄店_(習志野市香澄にあるディスカウント型スーパー。圧倒的な安さと豊富な品揃えで、地域の家計を支えるお店です。)
周辺環境:ワイズディスカ香澄店_(習志野市香澄にあるディスカウント型スーパー。圧倒的な安さと豊富な品揃えで、地域の家計を支えるお店です。)

この物件のココがオススメ!

「新習志野」駅徒歩17分 都心や大型商業施設へのアクセス良好なエリア リビングイン階段採用の広々LDK

こだわりポイント

  • 断熱に配慮された建物
  • 省エネに配慮された建物
  • 食器洗い洗浄乾燥機
  • 運転ラクラク生活
  • 大型商業施設のある街に住む
  • 駅まで平坦ラクラク通勤
  • LDKは1階に
  • 2階建て住宅限定
  • ウォークインクローゼット
  • リビングイン階段
  • LDK20帖以上
  • 対面キッチン
  • 浴室1坪以上
  • 小学校10分以内
  • 大規模公園10分以内
  • 有料道路インター2キロ以内
  • スーパー10分以内
  • 保育園10分以内
  • 幼稚園10分以内
  • 公園10分以内
  • 都市ガス
  • フラット35利用可
  • カースペース2台
  • 道路広々(5m以上)
  • 整形地
  • 低層住居専用地域

お気軽にどうぞ!

資料請求 現地見学 電話でお問い合わせ
0120-895-750

地図

申し訳ありません
こちらは会員限定機能です

会員登録で利用できる6つの便利機能

詳しく見る

間取り

お気軽にどうぞ!

資料請求 現地見学 電話でお問い合わせ
0120-895-750

ローンシミュレーション

頭金0万円・金利0.495%の場合

ボーナス時(年2回)お支払額

0

この物件の月々のお支払額

148,408

年収に対する返済比率

59

  • ※会員登録し、詳細情報を記入されますと、全ての物件で自動的に金額が表示され、大変便利です。
  • ※まだ会員登録をされていない方は、下記チェック欄をご記入ください。
  • ※上記計算は物件価格5,299万円+諸経費 8%込みの金額による結果となります。
  • ※返済金額はあくまでも目安です。

お客様の条件からシミュレーションするには?

会員登録
マイページから登録

ローンシミュレーションを入力

金利

直接入力する

ボーナス払い(年2回)

返済年数

頭金

直接入力する

 万円(半角数字)

年収

 万円(半角数字)

周辺環境

約200m

小学校

周辺環境:習志野市立香澄小学校

小学校

約200m

約700m

中学校

周辺環境:習志野市立第七中学校

中学校

約700m

約210m

幼稚園・保育園

周辺環境:習志野市立新習志野こども園

幼稚園・保育園

約210m

約800m

幼稚園・保育園

周辺環境:かすみ保育園 (良いこと悪いことの区別を教え、規範意識の基礎を育む園)

幼稚園・保育園

約800m

約2,700m

病院

周辺環境:医療法人社団葵会東京ベイ先端医療クリニック

病院

約2,700m

約1,000m

郵便局

周辺環境:習志野秋津郵便局

郵便局

約1,000m

約86m

公園

周辺環境:香澄近隣公園(香澄ふれあい公園)_(習志野市香澄にある、広大な芝生と水遊び場が人気の公園。四季折々の自然やBBQも楽しめる憩いのスポット。)

公園

約86m

約500m

スーパー

周辺環境:ワイズディスカ香澄店_(習志野市香澄にあるディスカウント型スーパー。圧倒的な安さと豊富な品揃えで、地域の家計を支えるお店です。)

スーパー

約500m

物件概要

価格 5,299万円
物件種別 新築一戸建て
間取り 4LDK
所在地 習志野市 香澄5丁目
交通
  • JR京葉線「新習志野」駅 徒歩 17 分
  • 総武線「幕張本郷」駅 バス停「香澄小学校」まで 徒歩 9 分 バス利用 13分
土地面積 114.79㎡
建物面積 103.51㎡
学区 習志野市立香澄小学校、習志野市立第七中学校
用途地域 第一種低層住居専用
建ぺい率 50%
容積率 100%
地目 宅地
駐車場 有り カースペース
接道 北東6m、南西9.8m
権利 所有権
私道面積 無し
セットバック 無し
建物構造 木造
建物階数 2階
築年月 2026年02月
入居日 即時
都市計画 市街化区域
取引態様 仲介
物件番号 F00266-1
設備 公営水道、公共下水、防犯シャッター、省エネルギー対策、駐車場2台以上、緑豊かな住宅地、閑静な住宅地、平坦地、地盤調査済、前道6m以上、整備された歩道、スーパーが近い(10分以内)、駅まで平坦、小学校徒歩10分以内、中学校徒歩10分以内、保育施設・幼稚園5分以内、公園5分以内、システムキッチン、ガス3口、食器洗い機付き、浄水器、I型キッチン、ユニットバス、追い焚き、浴室乾燥機、ウォシュレット、浴室1坪以上、浴室に窓、バルコニー、2階建、LDK20畳以上、採光3面、全室2面採光、室内洗濯機置き場、リビング階段、クローゼット、収納、床下収納、下駄箱、シャンプドレッサー付き、フラット35Sに対応、年内入居可、モニタ付きインターフォン、複層ガラス、火災警報器(報知機)、通風良好、陽当り良好、24時間換気システム、建物10年保証
建築確認番号 第25UDI1W建08007号
特記事項 景観法:有/宅地造成工事規制区域:有/日影制限:有/建築基準法第22条による区域 駐車は車種により2台可。 /
備考 「新習志野」駅徒歩17分 都心や大型商業施設へのアクセス良好なエリア リビングイン階段採用の広々LDK

お気軽にどうぞ!

資料請求 現地見学 電話でお問い合わせ
0120-895-750

このエリアでお探しの方へ

習志野市香澄5丁目 新築一戸建 5299万円 2号棟

JR京葉線「新習志野」駅 徒歩 17 分

総武線「幕張本郷」駅 バス停「香澄小学校」まで 徒歩 9 分 バス利用 13分

習志野市 香澄5丁目

5,299万円

4LDK

習志野市袖ケ浦4丁目 新築一戸建 5398万円 1号棟

京成本線「京成津田沼」駅 徒歩 20 分

総武線「幕張本郷」駅 徒歩 20 分

習志野市 袖ケ浦4丁目

5,398万円

4LDK

習志野市屋敷3丁目 新築一戸建 4698万円

京成本線「京成大久保」駅 徒歩 12 分

総武線「幕張本郷」駅 バス停「屋敷一丁目」まで 徒歩 8 分 バス利用 17分

習志野市 屋敷3丁目

4,698万円

4LDK

習志野市香澄 新築一戸建 PLAN B 4990万円

JR京葉線「新習志野」駅 徒歩 21 分

総武線「幕張本郷」駅 バス停「香澄2丁目」まで 徒歩 3 分 バス利用 12分

習志野市 香澄3丁目

4,990万円

3SLDK

習志野市袖ケ浦4丁目 新築一戸建 5828万円 2号棟

京成本線「京成津田沼」駅 徒歩 20 分

総武線「幕張本郷」駅 徒歩 20 分

習志野市 袖ケ浦4丁目

5,828万円

3LDK

習志野市東習志野8丁目 新築一戸建 3790万円

京成本線「八千代台」駅 徒歩 14 分

総武線「津田沼」駅 バス停「東習志野八丁目入口」まで 徒歩 5 分 バス利用 35分

習志野市 東習志野8丁目

3,790万円

4LDK

習志野市東習志野4丁目 新築一戸建 4399万円

京成本線「実籾」駅 徒歩 10 分

京成本線「八千代台」駅 バス停「第四中学校」まで 徒歩 5 分 バス利用 15分

習志野市 東習志野4丁目

4,399万円

4LDK

習志野市東習志野3丁目 4790万円 新築一戸建

京成本線「実籾」駅 徒歩 16 分

京成本線「八千代台」駅 バス停「東習志野五丁目北」まで 徒歩 8 分 バス利用 10分

習志野市 東習志野3丁目

4,790万円

4LDK

習志野市袖ケ浦4丁目 新築一戸建 4798万円 2号棟

京成本線「京成津田沼」駅 徒歩 19 分

京成千葉線「京成津田沼」駅 バス停「袖ケ浦四丁目」まで 徒歩 4 分 バス利用 7分

習志野市 袖ケ浦4丁目

4,798万円

3LDK

習志野市藤崎1丁目 新築一戸建 4998万円

JR中央・総武線「津田沼」駅 徒歩 20 分

京成本線「京成大久保」駅 徒歩 17 分

習志野市 藤崎1丁目

4,998万円

4LDK

お気軽にどうぞ!

資料請求 現地見学 電話でお問い合わせ
0120-895-750
来店予約