1. トップページ
  2. 船橋市二和西2丁目 新築一戸建 3890万円 1号棟

船橋市二和西2丁目 新築一戸建 3890万円 1号棟

価格
3,890万円
物件種別
新築一戸建て
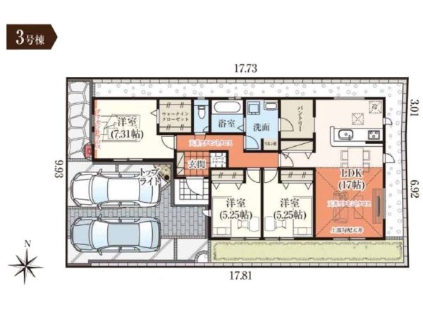
間取り
3LDK
所在地
船橋市 二和西2丁目
交通
  • 京成松戸線「滝不動」駅 徒歩 17 分
  • 京成松戸線「三咲」駅 徒歩 21 分
土地面積
178.38㎡
建物面積
87.77㎡
  • 前回情報更新日 2026.04.24
  • 次回情報更新予定日 2026.05.08
資料請求 現地見学 電話でお問い合わせ
0120-895-750
外観
外観
間取り
間取り
外観
外観
外観
外観
周辺環境:マルエツ 金杉店(新鮮な食材も日用品も、毎日の買い物がラクラク。マルエツが近くにあると、「今日の献立どうしよう?」も、笑顔でサクッと解決です。)
周辺環境:マルエツ 金杉店(新鮮な食材も日用品も、毎日の買い物がラクラク。マルエツが近くにあると、「今日の献立どうしよう?」も、笑顔でサクッと解決です。)
周辺環境:ローソン・スリーエフ 船橋二和西店(ちょっとした買い物から生活サポートまで頼れるローソン。近くにあると、「あれもこれも足りない!」も気軽にサッと解決できます。)
周辺環境:ローソン・スリーエフ 船橋二和西店(ちょっとした買い物から生活サポートまで頼れるローソン。近くにあると、「あれもこれも足りない!」も気軽にサッと解決できます。)
周辺環境:あすなろ保育園(広い空の下で開放感を味わい、伸びやかな心を大切にする園)
周辺環境:あすなろ保育園(広い空の下で開放感を味わい、伸びやかな心を大切にする園)
周辺環境:船橋市立二和小学校(健康への意識を持ち、自分を大切にする生活ができる学校)
周辺環境:船橋市立二和小学校(健康への意識を持ち、自分を大切にする生活ができる学校)
周辺環境:船橋市立御滝中学校(草花を育てながら、生命の力強さを身近に感じる学校)
周辺環境:船橋市立御滝中学校(草花を育てながら、生命の力強さを身近に感じる学校)

この物件のココがオススメ!

「滝不動」駅徒歩17分 WICなど収納豊富 使いやすい間取りで快適な生活 約6m以上の広々前面道路

こだわりポイント

  • 耐震に配慮された建物
  • 断熱に配慮された建物
  • 省エネに配慮された建物
  • 長期優良住宅
  • 浴室換気乾燥暖房機
  • 運転ラクラク生活
  • 子供の多い街に住む
  • LDKは1階に
  • シューズインクローク
  • ウォークインクローゼット
  • LDK15帖以上
  • 対面キッチン
  • 浴室1坪以上
  • パントリー
  • 小学校10分以内
  • 大規模公園10分以内
  • コンビニ10分以内
  • 小児科医院10分以内
  • 保育園10分以内
  • 公園10分以内
  • 都市ガス
  • フラット35利用可
  • カースペース2台
  • 10棟以上の分譲地
  • 公園隣接
  • 隣家との間隔たっぷり
  • 角地限定
  • 道路広々(5m以上)

お気軽にどうぞ!

資料請求 現地見学 電話でお問い合わせ
0120-895-750

地図

申し訳ありません
こちらは会員限定機能です

会員登録で利用できる6つの便利機能

詳しく見る

間取り

お気軽にどうぞ!

資料請求 現地見学 電話でお問い合わせ
0120-895-750

ローンシミュレーション

頭金0万円・金利0.495%の場合

ボーナス時(年2回)お支払額

0

この物件の月々のお支払額

108,959

年収に対する返済比率

44

  • ※会員登録し、詳細情報を記入されますと、全ての物件で自動的に金額が表示され、大変便利です。
  • ※まだ会員登録をされていない方は、下記チェック欄をご記入ください。
  • ※上記計算は物件価格3,890万円+諸経費 8%込みの金額による結果となります。
  • ※返済金額はあくまでも目安です。

お客様の条件からシミュレーションするには?

会員登録
マイページから登録

ローンシミュレーションを入力

金利

直接入力する

ボーナス払い(年2回)

返済年数

頭金

直接入力する

 万円(半角数字)

年収

 万円(半角数字)

周辺環境

約1,200m

スーパー

周辺環境:マルエツ 金杉店(新鮮な食材も日用品も、毎日の買い物がラクラク。マルエツが近くにあると、「今日の献立どうしよう?」も、笑顔でサクッと解決です。)

スーパー

約1,200m

約500m

コンビニ

周辺環境:ローソン・スリーエフ 船橋二和西店(ちょっとした買い物から生活サポートまで頼れるローソン。近くにあると、「あれもこれも足りない!」も気軽にサッと解決できます。)

コンビニ

約500m

約170m

幼稚園・保育園

周辺環境:あすなろ保育園(広い空の下で開放感を味わい、伸びやかな心を大切にする園)

幼稚園・保育園

約170m

約700m

小学校

周辺環境:船橋市立二和小学校(健康への意識を持ち、自分を大切にする生活ができる学校)

小学校

約700m

約900m

中学校

周辺環境:船橋市立御滝中学校(草花を育てながら、生命の力強さを身近に感じる学校)

中学校

約900m

物件概要

価格 3,890万円
物件種別 新築一戸建て
間取り 3LDK
所在地 船橋市 二和西2丁目
交通
  • 京成松戸線「滝不動」駅 徒歩 17 分
  • 京成松戸線「三咲」駅 徒歩 21 分
土地面積 178.38㎡
建物面積 87.77㎡
学区 船橋市立二和小学校、船橋市立御滝中学校
用途地域 無指
建ぺい率 50%
容積率 100%
地目 宅地
駐車場 有り カースペース
接道 西6m、東6.5m、北6.5m
権利 所有権
私道面積 有 381.79㎡ 1/14
セットバック 無し
建物構造 木造
建物階数 1階
築年月 2026年02月
入居日 即時
都市計画 市街化調整区域
取引態様 仲介
物件番号 F00190-1
設備 公営水道、個別浄化槽、設計住宅性能評価付、建設住宅性能評価付、省エネルギー対策、耐震構造、シックハウス対策、駐車場2台以上、閑静な住宅地、角地、都市近郊、地盤調査済、前道6m以上、市街地が近い、隣家との間隔が大きい、周辺交通量少なめ、小学校徒歩10分以内、保育施設・幼稚園5分以内、公園5分以内、システムキッチン、ガス3口、浄水器、I型キッチン、パントリー(食器・食品の収納庫)、ユニットバス、追い焚き、浴室乾燥機、ウォシュレット、浴室1坪以上、浴室に窓、暖房便座、浴室暖房、LDK15畳以上、採光2面、南面3室、全室2面採光、クローゼット、収納、下駄箱、全居室収納、洗面室収納、シャンプドレッサー付き、南庭、庭、フラット35Sに対応、年度内入居可、モニタ付きインターフォン、複層ガラス、火災警報器(報知機)、通風良好、24時間換気システム、建物10年保証
建築確認番号 第HPA-25-12033-1号
特記事項 不整形地:有/景観法:有/宅地造成工事規制区域:有/日影制限:有/建築基準法第22条による区域 駐車は車種により2台可。 /市街化調整区域(建築許可:都市計画法施行令36条1項3号に該当)/
備考 「滝不動」駅徒歩17分 WICなど収納豊富 使いやすい間取りで快適な生活 約6m以上の広々前面道路

お気軽にどうぞ!

資料請求 現地見学 電話でお問い合わせ
0120-895-750

このエリアでお探しの方へ

「四街道」駅 徒歩24分 新築一戸建

総武本線「四街道」駅 徒歩 24 分

京成本線「勝田台」駅 バス停「六方新田」まで 徒歩 13 分 バス利用 20分

千葉市稲毛区 山王町

3,590万円

4LDK

船橋市二和西2丁目 新築一戸建 3590万円 2号棟

京成松戸線「滝不動」駅 徒歩 17 分

京成松戸線「三咲」駅 徒歩 21 分

船橋市 二和西2丁目

3,590万円

4LDK

船橋市二和西2丁目 新築一戸建 3590万円 7号棟

京成松戸線「滝不動」駅 徒歩 17 分

京成松戸線「三咲」駅 徒歩 21 分

船橋市 二和西2丁目

3,590万円

4LDK

船橋市二和西2丁目 新築一戸建 3590万円 3号棟

京成松戸線「滝不動」駅 徒歩 17 分

京成松戸線「三咲」駅 徒歩 21 分

船橋市 二和西2丁目

3,590万円

3LDK

八千代市大和田 新築一戸建 3590万円

京成本線「京成大和田」駅 徒歩 8 分

東葉高速線「東葉勝田台」駅 徒歩 23 分

八千代市 大和田

3,590万円

4LDK

千葉市花見川区こてはし台2丁目 新築一戸建 3599万円

京成本線「勝田台」駅 バス停「こてはし団地入口」まで 徒歩 4 分 バス利用 13分

総武本線「稲毛」駅 バス停「こてはし団地入口」まで 徒歩 2 分 バス利用 27分

千葉市花見川区 こてはし台2丁目

3,599万円

4LDK

「二和向台」駅徒歩18分 新築一戸建 No.5 3650万円

京成松戸線「二和向台」駅 徒歩 18 分

京成松戸線「鎌ヶ谷大仏」駅 バス停「鎌ヶ谷」まで 徒歩 12 分 バス利用 3分

船橋市 二和西5丁目

3,650万円

4LDK

船橋市丸山3丁目 新築一戸建 3680万円

東武アーバンパークライン「馬込沢」駅 徒歩 20 分

東武アーバンパークライン「馬込沢」駅 バス停「丸山3丁目北」まで 徒歩 2 分 バス利用 6分

船橋市 丸山3丁目

3,680万円

4LDK

市川市大野町1丁目 新築一戸建 3790万円 2号棟

JR武蔵野線「市川大野」駅 徒歩 14 分

JR武蔵野線「市川大野」駅 バス停「梨風第一公園」まで 徒歩 2 分 バス利用 4分

市川市 大野町1丁目

3,690万円

3LDK

船橋市二和東5丁目 新築一戸建 PLAN A 3690万円

京成松戸線「三咲」駅 徒歩 7 分

京成松戸線「二和向台」駅 徒歩 9 分

船橋市 二和東5丁目

3,690万円

4LDK

船橋市二和西2丁目 新築一戸建 3690万円 14号棟

京成松戸線「滝不動」駅 徒歩 17 分

京成松戸線「三咲」駅 徒歩 21 分

船橋市 二和西2丁目

3,690万円

4LDK

船橋市二和西2丁目 新築一戸建 3690万円 4号棟

京成松戸線「滝不動」駅 徒歩 17 分

京成松戸線「三咲」駅 徒歩 21 分

船橋市 二和西2丁目

3,690万円

4LDK

お気軽にどうぞ!

資料請求 現地見学 電話でお問い合わせ
0120-895-750
来店予約