ようこそ!ゲストさん
お気に入り
保存した検索条件
閲覧履歴
会員登録
ログイン
0120-895-750
営業時間:9:00~21:00
早く売りたい事情あり!早いもの勝ちですよ!
選択中の条件:値引き物件
詳細条件
値引き物件
こだわり
-
該当件数
13件
値下げしました!今週末見学会開催中!「行徳」駅徒歩10分 新築一戸建て(A)
値下げしました
建物完成しましたのでご見学頂けます!
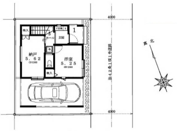
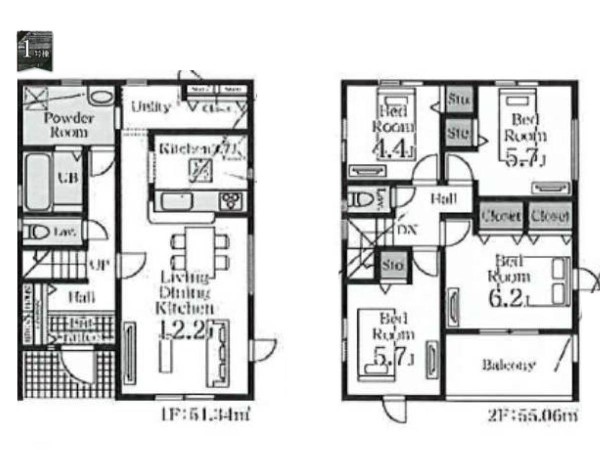
新築一戸建て
6,590万円
3LDK
2025.11.27更新
値下げしました!今週末内覧会開催中!「前原」駅徒歩10分 新築一戸建て(1)
5,498万円
4LDK
値下げしました!今週末内覧会開催中!「前原」駅徒歩10分 新築一戸建て(2)
5,298万円
値下げしました! 今週末内覧会開催中!「前原」駅徒歩10分 新築一戸建て(3)
4,998万円
3SLDK
値下げしました! 「船橋」駅徒歩12分 新築一戸建て(A)
4,750万円
値下げしました! 「船橋」駅徒歩12分 新築一戸建て(B)
値下げしました! 「京成津田沼」駅利用 新築一戸建て
4,590万円
値下げしました! 今週末内覧会開催中!「八千代中央」駅徒歩13分 新築一戸建て
4,399万円
値下げしました!今週末内覧会開催中!「高根公団」駅徒歩14分 新築一戸建て 角地
4,299万円
値下げしました! 今週末内覧会開催中!「北習志野」駅徒歩14分 新築一戸建て
4,099万円
値下げしました! 今週末内覧会開催中!「京成大久保」駅利用 新築一戸建て
4,098万円
値下げしました! 今週末内覧会開催中!「初富」駅徒歩11分 新築一戸建て
3,980万円
値下げしました! 「北習志野」駅利用 新築一戸建て(6)
3,690万円