1. トップページ
  2. 船橋市習志野台8丁目 新築一戸建 4090万円 C号棟

船橋市習志野台8丁目 新築一戸建 4090万円 C号棟

価格
4,090万円
物件種別
新築一戸建て
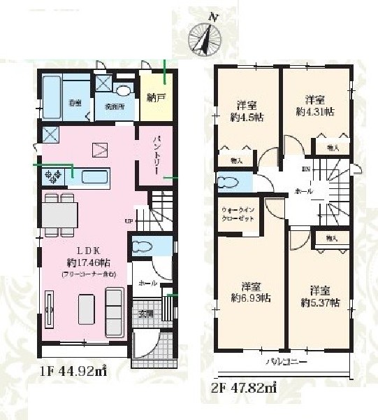
間取り
4LDK
所在地
船橋市 習志野台8丁目
交通
  • 東葉高速線「船橋日大前」駅 徒歩 18 分
  • 京成松戸線「習志野」駅 徒歩 22 分
土地面積
96.48㎡
建物面積
106.30㎡
  • 前回情報更新日 2026.04.10
  • 次回情報更新予定日 2026.04.24
資料請求 現地見学 電話でお問い合わせ
0120-895-750
外観:完成予想図です。
外観:完成予想図です。
間取り
間取り
区画図
区画図
外観
外観
外観
外観
外観
外観
周辺環境:アンデルセン第二保育園(木々の緑や花々に囲まれ、穏やかな情緒を育む教育の場)
周辺環境:アンデルセン第二保育園(木々の緑や花々に囲まれ、穏やかな情緒を育む教育の場)
周辺環境:船橋市立習志野台第二小学校(地域の人たちと触れ合い、社会の温かさを実感できる学校)
周辺環境:船橋市立習志野台第二小学校(地域の人たちと触れ合い、社会の温かさを実感できる学校)
周辺環境:船橋市立習志野台中学校(みんなの前で話す経験を通じ、自分を伝える勇気を養う学校)
周辺環境:船橋市立習志野台中学校(みんなの前で話す経験を通じ、自分を伝える勇気を養う学校)
周辺環境:医療法人成春会北習志野花輪病院(千葉県船橋市にある、救急医療からリハビリまで幅広く対応する地域密着型の総合病院)
周辺環境:医療法人成春会北習志野花輪病院(千葉県船橋市にある、救急医療からリハビリまで幅広く対応する地域密着型の総合病院)
周辺環境:マックスバリュ習志野台店(毎日の食材も日用品も、手軽にまとめてゲット。マックスバリュが近くにあると、「買い忘れちゃった!」も、笑顔でサクッと解決です。)
周辺環境:マックスバリュ習志野台店(毎日の食材も日用品も、手軽にまとめてゲット。マックスバリュが近くにあると、「買い忘れちゃった!」も、笑顔でサクッと解決です。)
周辺環境:セブンイレブン習志野台8丁目店 (小腹が空いた深夜も、急な支払いもお任せ。セブンイレブンが近くにあると、なぜか毎日が安心です。)
周辺環境:セブンイレブン習志野台8丁目店 (小腹が空いた深夜も、急な支払いもお任せ。セブンイレブンが近くにあると、なぜか毎日が安心です。)

この物件のココがオススメ!

主寝室7帖+WIC付 食洗器付 外出前のみだしなみチェックに最適な下駄箱鏡面付 ゆとりのリビング

こだわりポイント

  • 建売だけど一味違うこだわり建物
  • 耐震に配慮された建物
  • 断熱に配慮された建物
  • 省エネに配慮された建物
  • 有名ハウスメーカーの建物
  • 長期優良住宅
  • 食器洗い洗浄乾燥機
  • 浴室換気乾燥暖房機
  • 運転ラクラク生活
  • 外食を楽しめる生活
  • 大型商業施設のある街に住む
  • 駅まで平坦ラクラク通勤
  • 子供の多い街に住む
  • 大人の二人暮らし
  • おしゃれイメージな街に住む
  • 自然を感じる暮らし
  • LDKは1階に
  • LDK15帖以上
  • 広々バルコニー
  • 対面キッチン
  • 浴室1坪以上
  • 小学校10分以内
  • スーパー10分以内
  • コンビニ10分以内
  • 保育園10分以内
  • 公園10分以内
  • 都市ガス
  • フラット35利用可
  • カースペース2台
  • 道路広々(5m以上)
  • 日当たり良好

お気軽にどうぞ!

資料請求 現地見学 電話でお問い合わせ
0120-895-750

地図

申し訳ありません
こちらは会員限定機能です

会員登録で利用できる6つの便利機能

詳しく見る

間取り

お気軽にどうぞ!

資料請求 現地見学 電話でお問い合わせ
0120-895-750

ローンシミュレーション

頭金0万円・金利0.495%の場合

ボーナス時(年2回)お支払額

0

この物件の月々のお支払額

114,561

年収に対する返済比率

46

  • ※会員登録し、詳細情報を記入されますと、全ての物件で自動的に金額が表示され、大変便利です。
  • ※まだ会員登録をされていない方は、下記チェック欄をご記入ください。
  • ※上記計算は物件価格4,090万円+諸経費 8%込みの金額による結果となります。
  • ※返済金額はあくまでも目安です。

お客様の条件からシミュレーションするには?

会員登録
マイページから登録

ローンシミュレーションを入力

金利

直接入力する

ボーナス払い(年2回)

返済年数

頭金

直接入力する

 万円(半角数字)

年収

 万円(半角数字)

周辺環境

約650m

幼稚園・保育園

周辺環境:アンデルセン第二保育園(木々の緑や花々に囲まれ、穏やかな情緒を育む教育の場)

幼稚園・保育園

約650m

約500m

小学校

周辺環境:船橋市立習志野台第二小学校(地域の人たちと触れ合い、社会の温かさを実感できる学校)

小学校

約500m

約800m

中学校

周辺環境:船橋市立習志野台中学校(みんなの前で話す経験を通じ、自分を伝える勇気を養う学校)

中学校

約800m

約1,600m

病院

周辺環境:医療法人成春会北習志野花輪病院(千葉県船橋市にある、救急医療からリハビリまで幅広く対応する地域密着型の総合病院)

病院

約1,600m

約650m

スーパー

周辺環境:マックスバリュ習志野台店(毎日の食材も日用品も、手軽にまとめてゲット。マックスバリュが近くにあると、「買い忘れちゃった!」も、笑顔でサクッと解決です。)

スーパー

約650m

約500m

コンビニ

周辺環境:セブンイレブン習志野台8丁目店 (小腹が空いた深夜も、急な支払いもお任せ。セブンイレブンが近くにあると、なぜか毎日が安心です。)

コンビニ

約500m

物件概要

価格 4,090万円
物件種別 新築一戸建て
間取り 4LDK
所在地 船橋市 習志野台8丁目
交通
  • 東葉高速線「船橋日大前」駅 徒歩 18 分
  • 京成松戸線「習志野」駅 徒歩 22 分
土地面積 96.48㎡
建物面積 106.30㎡
学区 船橋市立習志野台第、船橋市立習志野台中学校
用途地域 第一種中高層住居専用
建ぺい率 60%
容積率 200%
地目 宅地
駐車場 有り ビルトイン車庫
接道 北西5.8m
権利 所有権
私道面積 無し
セットバック 無し
建物構造 木造
建物階数 2階
築年月 2026年05月
入居日 2026年05月
都市計画 市街化区域
取引態様 仲介
物件番号 F00149-C
設備 公営水道、公共下水、設計住宅性能評価付、省エネルギー対策、耐震構造、シックハウス対策、建設住宅性能評価書(新築時)、ビルトインガレージ、駐車場1台、緑豊かな住宅地、閑静な住宅地、平坦地、都市近郊、地盤調査済、市街地が近い、隣家との間隔が大きい、周辺交通量少なめ、整備された歩道、ゴルフ場が近い、テニスコートが近い、スーパーが近い(10分以内)、駅まで平坦、2沿線以上利用可、小学校徒歩10分以内、保育施設・幼稚園5分以内、公園5分以内、コンビニ5分以内、システムキッチン、ガス3口、食器洗い機付き、浄水器、オープンキッチン、ユニットバス、追い焚き、浴室乾燥機、ウォシュレット、トイレ2ヶ所、浴室1坪以上、浴室に窓、暖房便座、浴室暖房、バルコニー、南面バルコニー、2階建、玄関ホール、LDK15畳以上、採光3面、南西向き、室内洗濯機置き場、クローゼット、収納、下駄箱、全居室収納、シャンプドレッサー付き、フラット35Sに対応、年内入居可、モニタ付きインターフォン、火災警報器(報知機)、通風良好、陽当り良好、建物10年保証
建築確認番号 第HPA-26-01373-1号
特記事項 景観法:有/宅地造成工事規制区域:有/高度地区:有/日影制限:有/建築基準法第22条による区域 重要土地等調査法(注視区域第5条) 建物面積に車庫面積9.93平米含む。 /
備考 主寝室7帖+WIC付 食洗器付 外出前のみだしなみチェックに最適な下駄箱鏡面付 ゆとりのリビング

お気軽にどうぞ!

資料請求 現地見学 電話でお問い合わせ
0120-895-750

このエリアでお探しの方へ

船橋市松が丘2丁目 新築一戸建 3790万円

京成松戸線「高根公団」駅 徒歩 25 分

東葉高速線「北習志野」駅 バス停「刈米」まで 徒歩 11 分 バス利用 11分

船橋市 松が丘2丁目

3,790万円

4LDK

習志野市東習志野8丁目 新築一戸建 3790万円

京成本線「八千代台」駅 徒歩 14 分

総武線「津田沼」駅 バス停「東習志野八丁目入口」まで 徒歩 5 分 バス利用 35分

習志野市 東習志野8丁目

3,790万円

4LDK

船橋市丸山1丁目 新築一戸建 3790万円 1号棟

東武アーバンパークライン「馬込沢」駅 徒歩 9 分

JR武蔵野線「船橋法典」駅 バス停「法田中学校入口」まで 徒歩 14 分 バス利用 7分

船橋市 丸山1丁目

3,790万円

3SLDK

船橋市丸山1丁目 新築一戸建 3790万円 2号棟

東武アーバンパークライン「馬込沢」駅 徒歩 9 分

JR武蔵野線「船橋法典」駅 バス停「法田中学校入口」まで 徒歩 14 分 バス利用 7分

船橋市 丸山1丁目

3,790万円

4LDK

船橋市丸山1丁目 新築一戸建 3790万円 3号棟

東武アーバンパークライン「馬込沢」駅 徒歩 9 分

JR武蔵野線「船橋法典」駅 バス停「法田中学校入口」まで 徒歩 14 分 バス利用 7分

船橋市 丸山1丁目

3,790万円

4LDK

千葉市花見川区こてはし台6丁目 新築一戸建 3790万円

東葉高速線「東葉勝田台」駅 バス停「横戸小学校入口」まで 徒歩 9 分 バス利用 6分

京成本線「勝田台」駅 バス停「横戸小学校入口」まで 徒歩 9 分 バス利用 6分

千葉市花見川区 こてはし台6丁目

3,790万円

4LDK

船橋市習志野台5丁目 新築一戸建 A号棟 3790万円

京成松戸線「習志野」駅 徒歩 19 分

東葉高速線「北習志野」駅 バス停「習志野台八丁目」まで 徒歩 5 分 バス利用 9分

船橋市 習志野台5丁目

3,790万円

4SLDK

市川市大野町1丁目 新築一戸建 3790万円 2号棟

JR武蔵野線「市川大野」駅 徒歩 14 分

JR武蔵野線「市川大野」駅 バス停「梨風第一公園」まで 徒歩 2 分 バス利用 4分

市川市 大野町1丁目

3,790万円

3LDK

船橋市高野台3丁目 新築一戸建 3799万円 1号棟

京成松戸線「二和向台」駅 徒歩 24 分

北総・公団線「白井」駅 バス停「白井開拓」まで 徒歩 5 分 バス利用 6分

船橋市 高野台3丁目

3,799万円

4LDK

船橋市新高根6丁目 新築一戸建 3888万円

京成松戸線「高根公団」駅 徒歩 6 分

東葉高速線「飯山満」駅 徒歩 27 分

船橋市 新高根6丁目

3,888万円

4LDK

船橋市二和東5丁目 新築一戸建 PLAN D 3890万円

京成松戸線「三咲」駅 徒歩 7 分

京成松戸線「二和向台」駅 徒歩 9 分

船橋市 二和東5丁目

3,890万円

3SLDK

船橋市二和西2丁目 新築一戸建 3890万円 1号棟

京成松戸線「滝不動」駅 徒歩 17 分

京成松戸線「三咲」駅 徒歩 21 分

船橋市 二和西2丁目

3,890万円

3LDK

お気軽にどうぞ!

資料請求 現地見学 電話でお問い合わせ
0120-895-750
来店予約