1. トップページ
  2. 船橋市習志野台4丁目 新築一戸建 4190万円

船橋市習志野台4丁目 新築一戸建 4190万円

価格
4,190万円
物件種別
新築一戸建て
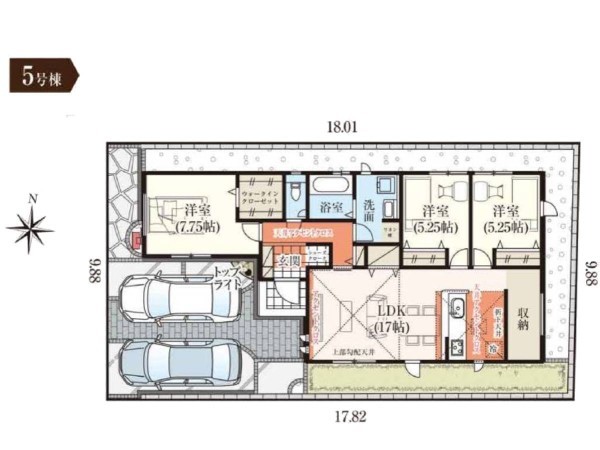
間取り
4LDK
所在地
船橋市 習志野台4丁目
交通
  • 東葉高速線「北習志野」駅 徒歩 11 分
  • 京成松戸線「習志野」駅 徒歩 8 分
土地面積
82.14㎡
建物面積
93.67㎡
  • 前回情報更新日 2026.03.12
  • 次回情報更新予定日 2026.03.26
資料請求 現地見学 電話でお問い合わせ
0120-895-750
外観:完成予想図です
外観:完成予想図です
間取り
間取り
周辺環境:船橋市立習志野台第一小学校 (先生の温かな情熱が、学ぶことへのきっかけをくれる学校)
周辺環境:船橋市立習志野台第一小学校 (先生の温かな情熱が、学ぶことへのきっかけをくれる学校)
周辺環境:船橋市立習志野台中学校 (みんなの前で話す経験を通じ、自分を伝える勇気を養う学校)
周辺環境:船橋市立習志野台中学校 (みんなの前で話す経験を通じ、自分を伝える勇気を養う学校)
周辺環境:ヨークマート 習志野台店
周辺環境:ヨークマート 習志野台店
周辺環境:セブン-イレブン 船橋習志野台4丁目店 (小腹が空いた深夜も、急な支払いもお任せ。)
周辺環境:セブン-イレブン 船橋習志野台4丁目店 (小腹が空いた深夜も、急な支払いもお任せ。)
周辺環境:ビッグエー (食材も日用品も、サッと買えてお財布にも優しい。ビッグエーが近くにあると、「あ、足りない!」も慌てず笑顔で解決です。)
周辺環境:ビッグエー (食材も日用品も、サッと買えてお財布にも優しい。ビッグエーが近くにあると、「あ、足りない!」も慌てず笑顔で解決です。)
周辺環境:ファミリーマート 船橋習志野台五丁目店 (急な買い物も、ちょっとした休憩もサッと解決。)
周辺環境:ファミリーマート 船橋習志野台五丁目店 (急な買い物も、ちょっとした休憩もサッと解決。)
周辺環境:習志野台第一保育園 (生涯にわたる学びの基礎を、温かな愛情の中で培う園)
周辺環境:習志野台第一保育園 (生涯にわたる学びの基礎を、温かな愛情の中で培う園)
周辺環境:医療法人成春会北習志野花輪病院 (千葉県船橋市にある、救急医療からリハビリまで幅広く対応する地域密着型の総合病院)
周辺環境:医療法人成春会北習志野花輪病院 (千葉県船橋市にある、救急医療からリハビリまで幅広く対応する地域密着型の総合病院)
周辺環境:北習志野近隣公園(野球場やテニスコートを備え、豊かな緑の中でスポーツや散策を楽しめます。)
周辺環境:北習志野近隣公園(野球場やテニスコートを備え、豊かな緑の中でスポーツや散策を楽しめます。)

この物件のココがオススメ!

「北習志野」駅徒歩11分 公園や図書館、スーパーが近くにあり子育て環境に最適 すべての居室に収納あり

こだわりポイント

  • 運転ラクラク生活
  • 外食を楽しめる生活
  • 駅まで平坦ラクラク通勤
  • 2沿線利用であんしん通勤
  • LDKは1階に
  • LDK18帖以上
  • 対面キッチン
  • 大規模公園10分以内
  • スーパー10分以内
  • コンビニ10分以内
  • 総合病院10分以内
  • 小児科医院10分以内
  • 保育園10分以内
  • 幼稚園10分以内
  • 公園10分以内
  • 都市ガス
  • 道路広々(5m以上)
  • 南道路限定
  • 整形地

お気軽にどうぞ!

資料請求 現地見学 電話でお問い合わせ
0120-895-750

地図

申し訳ありません
こちらは会員限定機能です

会員登録で利用できる6つの便利機能

詳しく見る

間取り

お気軽にどうぞ!

資料請求 現地見学 電話でお問い合わせ
0120-895-750

ローンシミュレーション

頭金0万円・金利0.495%の場合

ボーナス時(年2回)お支払額

0

この物件の月々のお支払額

117,362

年収に対する返済比率

47

  • ※会員登録し、詳細情報を記入されますと、全ての物件で自動的に金額が表示され、大変便利です。
  • ※まだ会員登録をされていない方は、下記チェック欄をご記入ください。
  • ※上記計算は物件価格4,190万円+諸経費 8%込みの金額による結果となります。
  • ※返済金額はあくまでも目安です。

お客様の条件からシミュレーションするには?

会員登録
マイページから登録

ローンシミュレーションを入力

金利

直接入力する

ボーナス払い(年2回)

返済年数

頭金

直接入力する

 万円(半角数字)

年収

 万円(半角数字)

周辺環境

約950m

小学校

周辺環境:船橋市立習志野台第一小学校 (先生の温かな情熱が、学ぶことへのきっかけをくれる学校)

小学校

約950m

約900m

中学校

周辺環境:船橋市立習志野台中学校 (みんなの前で話す経験を通じ、自分を伝える勇気を養う学校)

中学校

約900m

約160m

スーパー

周辺環境:ヨークマート 習志野台店

スーパー

約160m

約250m

コンビニ

周辺環境:セブン-イレブン 船橋習志野台4丁目店 (小腹が空いた深夜も、急な支払いもお任せ。)

コンビニ

約250m

約500m

スーパー

周辺環境:ビッグエー (食材も日用品も、サッと買えてお財布にも優しい。ビッグエーが近くにあると、「あ、足りない!」も慌てず笑顔で解決です。)

スーパー

約500m

約250m

コンビニ

周辺環境:ファミリーマート 船橋習志野台五丁目店 (急な買い物も、ちょっとした休憩もサッと解決。)

コンビニ

約250m

約550m

幼稚園・保育園

周辺環境:習志野台第一保育園 (生涯にわたる学びの基礎を、温かな愛情の中で培う園)

幼稚園・保育園

約550m

約750m

病院

周辺環境:医療法人成春会北習志野花輪病院 (千葉県船橋市にある、救急医療からリハビリまで幅広く対応する地域密着型の総合病院)

病院

約750m

約600m

公園

周辺環境:北習志野近隣公園(野球場やテニスコートを備え、豊かな緑の中でスポーツや散策を楽しめます。)

公園

約600m

物件概要

価格 4,190万円
物件種別 新築一戸建て
間取り 4LDK
所在地 船橋市 習志野台4丁目
交通
  • 東葉高速線「北習志野」駅 徒歩 11 分
  • 京成松戸線「習志野」駅 徒歩 8 分
土地面積 82.14㎡
建物面積 93.67㎡
学区 船橋市立習志野台第一小学校、船橋市立習志野台中学校
用途地域 第一種住居
建ぺい率 60%
容積率 200%
地目 宅地
駐車場 有り カースペース
接道 南16m
権利 所有権
私道面積 無し
セットバック 無し
建物構造 木造
建物階数 2階
築年月 2026年04月
入居日 2026年05月
都市計画 市街化区域
取引態様 仲介
物件番号 F00172
設備 公営水道、公共下水、設計住宅性能評価付、建設住宅性能評価付、省エネルギー対策、耐震構造、シックハウス対策、駐車場1台、平坦地、前面棟無、都市近郊、地盤調査済、南側道路面す、市街地が近い、スーパーが近い(10分以内)、駅まで平坦、2沿線以上利用可、総合病院徒歩10分以内、保育施設・幼稚園5分以内、公園5分以内、コンビニ5分以内、システムキッチン、ガス3口、浄水器、ユニットバス、追い焚き、浴室乾燥機、ウォシュレット、トイレ2ヶ所、浴室に窓、バルコニー、2階建、LDK18畳以上、全室2面採光、クローゼット、収納、下駄箱、全居室収納、シャンプドレッサー付き、年度内入居可、火災警報器(報知機)、通風良好、陽当り良好、24時間換気システム、建物10年保証
建築確認番号 第HPA26-02162-1号
特記事項 景観法:有/宅地造成工事規制区域:有/高度地区:有/日影制限:有/建築基準法第22条による区域。 /
備考 「北習志野」駅徒歩11分 公園や図書館、スーパーが近くにあり子育て環境に最適 すべての居室に収納あり

お気軽にどうぞ!

資料請求 現地見学 電話でお問い合わせ
0120-895-750

このエリアでお探しの方へ

船橋市二和西2丁目 新築一戸建 3890万円 5号棟

京成松戸線「滝不動」駅 徒歩 17 分

京成松戸線「三咲」駅 徒歩 21 分

船橋市 二和西2丁目

3,890万円

3LDK

船橋市二和西2丁目 新築一戸建 3890万円 1号棟

京成松戸線「滝不動」駅 徒歩 17 分

京成松戸線「三咲」駅 徒歩 21 分

船橋市 二和西2丁目

3,890万円

3LDK

船橋市栄町1丁目 新築一戸建 3890万円 1号棟

京成本線「京成船橋」駅 徒歩 22 分

総武線「船橋」駅 徒歩 26 分

船橋市 栄町1丁目

3,890万円

3LDK

習志野市東習志野3丁目 新築一戸建 3970万円 1号棟

京成本線「実籾」駅 徒歩 17 分

習志野市 東習志野3丁目

3,970万円

4LDK

「三咲」駅 徒歩16分 新築一戸建

京成松戸線「三咲」駅 徒歩 16 分

京成松戸線「滝不動」駅 徒歩 20 分

船橋市 大穴北1丁目

3,980万円

4LDK

船橋市栄町1丁目 新築一戸建 3988万円 1号棟

京成本線「京成船橋」駅 徒歩 22 分

総武線「船橋」駅 徒歩 24 分

船橋市 栄町1丁目

3,988万円

3SLDK

「二和向台」駅徒歩18分 新築一戸建 No.6 3990万円

京成松戸線「二和向台」駅 徒歩 18 分

京成松戸線「鎌ヶ谷大仏」駅 バス停「鎌ヶ谷」まで 徒歩 12 分 バス利用 3分

船橋市 二和西5丁目

3,990万円

4LDK

船橋市二和東5丁目 新築一戸建 PLAN A 3990万円

京成松戸線「三咲」駅 徒歩 7 分

京成松戸線「二和向台」駅 徒歩 9 分

船橋市 二和東5丁目

3,990万円

4LDK

船橋市習志野台8丁目 新築一戸建 3990万円 B号棟

東葉高速線「船橋日大前」駅 徒歩 18 分

京成松戸線「習志野」駅 徒歩 22 分

船橋市 習志野台8丁目

3,990万円

3SLDK

「二和向台」駅徒歩18分 新築一戸建 No.3 3990万円

京成松戸線「二和向台」駅 徒歩 18 分

京成松戸線「鎌ヶ谷大仏」駅 バス停「鎌ヶ谷」まで 徒歩 12 分 バス利用 3分

船橋市 二和西5丁目

3,990万円

4LDK

船橋市習志野台5丁目 新築一戸建 A号棟 3990万円

京成松戸線「習志野」駅 徒歩 19 分

東葉高速線「北習志野」駅 バス停「習志野台八丁目」まで 徒歩 5 分 バス利用 9分

船橋市 習志野台5丁目

3,990万円

4SLDK

千葉市美浜区高浜5丁目 新築一戸建 3990万円 B号棟

JR京葉線「稲毛海岸」駅 徒歩 12 分

総武線「稲毛」駅 バス停「稲毛ショップ」まで 徒歩 4 分 バス利用 19分

千葉市美浜区 高浜5丁目

3,990万円

3LDK

お気軽にどうぞ!

資料請求 現地見学 電話でお問い合わせ
0120-895-750
来店予約