ようこそ!ゲストさん
お気に入り
保存した検索条件
閲覧履歴
会員登録
ログイン
0120-895-750
営業時間:9:00~21:00
選択中の条件:1週間以内
エリア
-
詳細条件
1週間以内
こだわり
該当件数
175件
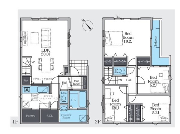
「二和向台」駅徒歩18分 新築一戸建 No.7 4290万円
間取り
建物完成しましたのでご見学頂けます!
新築一戸建て
4,290万円
4LDK
2026.04.03更新
船橋市新高根6丁目 新築一戸建 4290万円
千葉市美浜区高浜6丁目 新築一戸建 4290万円
値下げしました
3LDK
船橋市習志野台5丁目 新築一戸建 C号棟 4290万円
3LDK+2S
船橋市習志野2丁目 新築一戸建 4388万円 2号棟
4,388万円
船橋市習志野台8丁目 新築一戸建 4390万円 A号棟
4,390万円
2026.03.30更新
申し訳ありません こちらは会員限定物件です
会員登録で利用できる6つの便利機能
市川市北方町4丁目 新築一戸建 B号棟 4390万円
船橋市三山9丁目 新築一戸建 4390万円 1号棟
八千代市八千代台北16丁目 新築一戸建 4399万円
4,399万円